Inselkiez
Deine Baugemeinschaft in Hamburg Wilhelmsburg
Willkommen im Inselkiez – unser gemeinschaftliches Wohnprojekt wartet auf dich! Mach mit, gestalte mit uns einen lebendigen und nachhaltigen Ort zum Leben.
Lerne den Inselkiez und uns hier und bei einem unserer Treffen kennen.


1. Freie Wohnungen & Townhouses
Fühl dich zuhause im Inselkiez! Entdecke unsere freie Wohnungen in unserer Baugemeinschaft und werde Teil eines lebendigen, nachhaltigen Viertels. Schau dir jetzt die freien Wohnungen an – wir freuen uns auf dich!
➡️ Zu unseren freien Wohnungen
🏡 Freie Townhouse-Wohnungen
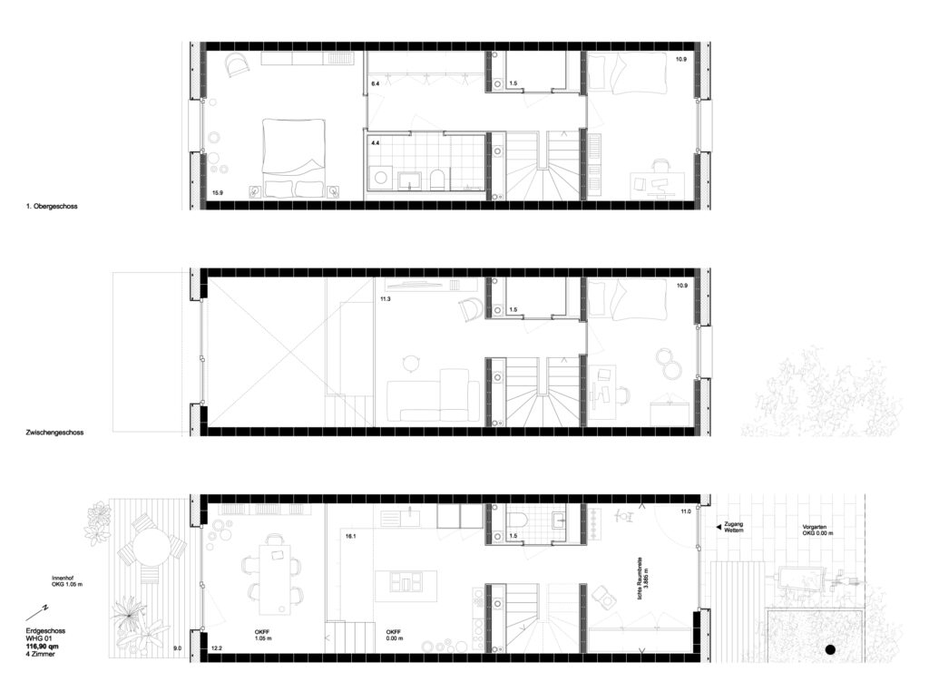
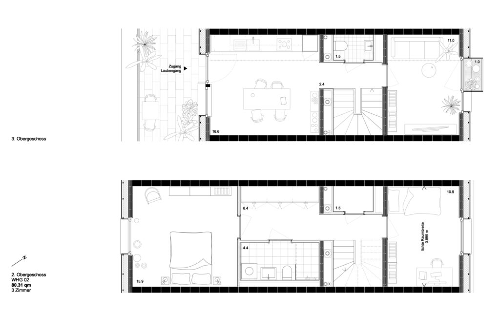
In den Townhouses (Häuser G–J) im Inselkiez entstehen besondere Maisonette-Wohnungen über mehrere Ebenen: Die unteren Wohnungen bieten einen ebenerdigen eigenen Eingang und direkten Zugang zu Garten und Innenhof. Die oberen Maisonette-Wohnungen überzeugen durch Loft-Charakter, großzügige Wohnküche, sichtbare Deckenkonstruktion und Balkon zum Wettern. Ideal für Familien, Paare und alle, die urban und gleichzeitig naturnah wohnen möchten.
➡️ Zu unseren Townhouses



2. Jetzt verfügbar: Gewerbefläche im Inselkiez Wilhelmsburg
Im Herzen des neuen Elbinselquartiers Hamburg-Wilhelmsburg entsteht im Haus A des Inselkiezes eine attraktive Gewerbefläche von 41 m² – direkt an der Promenade der Jaffestraße.
Die Einheit eignet sich perfekt für Praxis, Büro, Atelier oder ruhige Dienstleistung und verbindet nachhaltiges Bauen mit einem lebendigen Umfeld.
👉 Mehr erfahren: Gewerbefläche im Inselkiez »

3. Unsere Gemeinschaft – Gemeinsam stark auf dem Inselkiez
Zusammen wohnen, zusammen wachsen: Unsere Baugemeinschaft vereint Menschen, die mehr als nur eine Adresse teilen wollen. Erfahre, wer wir sind und was uns antreibt!
➡️ Zu unserer Baugemeinschaft
4. Der Inselkiez – Raum für Träume, Platz für Ideen
Mitten in der Stadt, umgeben von Wasser und Grün, entsteht unser Inselkiez, der modernes Wohnen neu denkt. Warum Inselkiez?
🌿 Nachhaltigkeit: Ressourcenbewusstes Bauen und Leben.
🏠 Gemeinschaft: Raum für Begegnung und Austausch.
🌊 Lage: Insel-Flair mitten in der Stadt.
🤝 Mitgestaltung: Deine Ideen zählen!
Schau dir an, wie wir unsere Vision Wirklichkeit werden lassen und entdecke dir Grundrisse unseres Projektes.
➡️ Zum Bauprojekt
Einen ersten Vorgeschmack auf unsere Gebäude bekommst du mit einem Klick auf die folgenden Bilder:
5. Lerne den Inselkiez persönlich kennen
Triff den Inselkiez und seine Menschen und lerne uns bei unseren zahlreichen Veranstaltungen und werde Teil unserer Baugemeinschaft.
➡️ Zu unseren Terminen
Inselkiez-Termine
6. Nimm Kontakt zu uns auf
Hast du Fragen, möchtest mehr über den Inselkiez erfahren oder einfach in unseren Newsletter aufgenommen werden? Schreib uns gern mit einem ausgefüllten Inselkiez-Steckbrief
📧 kontakt@inselkiez.de
Oder trag dich einfach in unseren Newsletter ein:
Entdecke mehr über unser Projekt auf Instagram oder in unserer WhatsApp Community:




